Quân khu 7 Online

Kinh tế - Hậu cần - Kỹ thuật > Kinh tế

Thứ tư, 24/12/2025, 06:43 (GMT+7)
24 lượt xem

Sau nhiều năm chậm tiến độ, dự án hơn 10ha ở Phú Quốc tái khởi động

Sau nhiều năm chậm tiến độ, dự án Khu du lịch sinh thái Việt Resort tại khu vực Rạch Vẹm, đặc khu Phú Quốc, tỉnh An Giang đã hoàn tất việc lập lại Báo cáo đánh giá tác động môi trường (ĐTM) – thủ tục pháp lý mang tính then chốt, quyết định khả năng triển khai tiếp theo của dự án.

Dự án hơn 10,8ha, quy mô lớn so với khu vực Bắc đảo

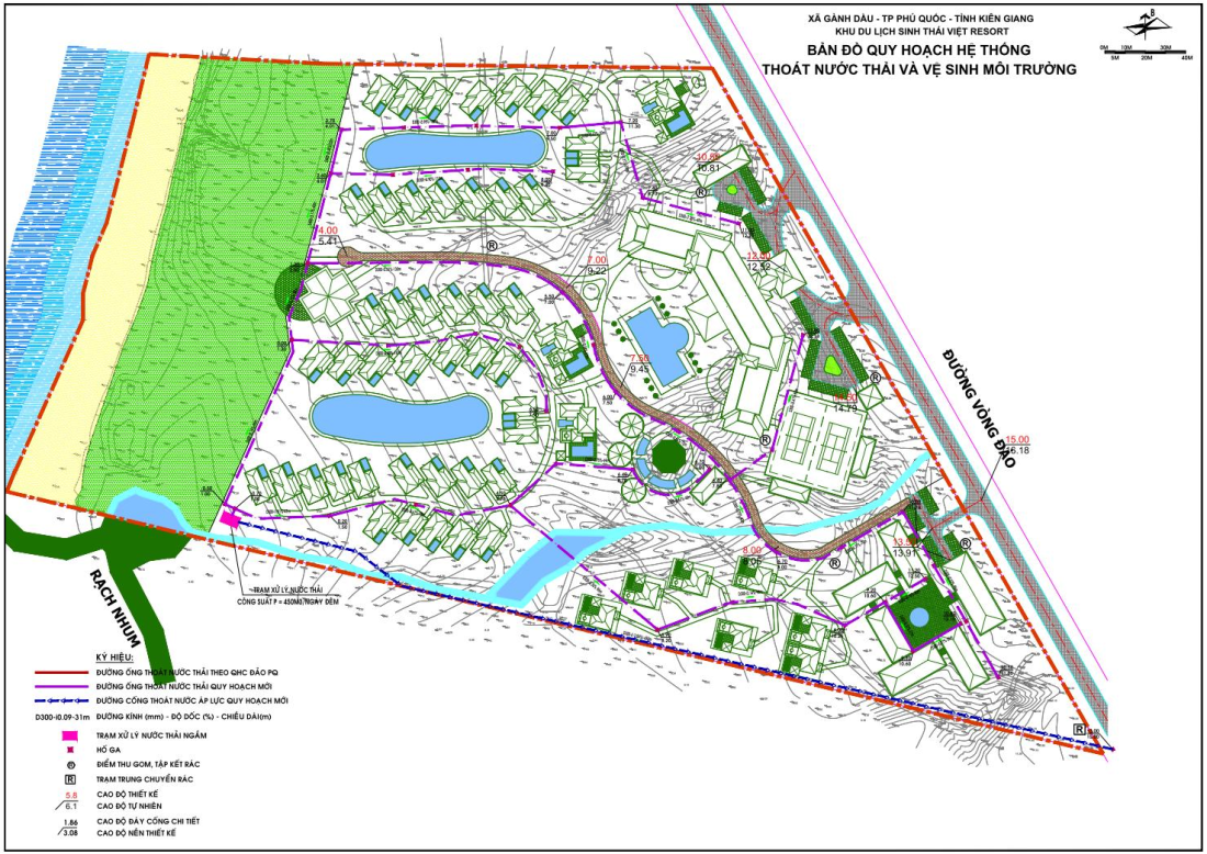
Theo hồ sơ ĐTM lập lại, Khu du lịch sinh thái Việt Resort do Công ty TNHH MTV Ha Ta Việt An làm chủ đầu tư, có tổng diện tích 108.936m2 (khoảng 10,9ha) – một quy mô không nhỏ tại khu vực Bắc đảo Phú Quốc, nơi mật độ dự án du lịch chưa dày đặc như khu Dương Đông hay Bãi Trường.
Dự án được quy hoạch với 454 phòng lưu trú, tổng lượng khách và nhân sự phục vụ khoảng 2.418 người, hướng tới mô hình khu du lịch sinh thái biển đảo. Với quy mô này, Việt Resort không phải dự án nhỏ lẻ mà thuộc nhóm tổ hợp lưu trú – dịch vụ có tác động đáng kể đến hạ tầng, môi trường và sinh thái khu vực nếu triển khai đồng loạt. Đây cũng là lý do dự án nằm trong diện phải kiểm soát môi trường chặt chẽ ngay từ khâu pháp lý.

Vì sao phải lập lại ĐTM sau khi đã được phê duyệt?

Điểm đáng chú ý là dự án đã từng được phê duyệt ĐTM từ năm 2018, tuy nhiên do không triển khai bất kỳ hạng mục xây dựng nào trong hơn 24 tháng, dự án rơi vào trường hợp phải lập lại ĐTM theo quy định của Luật Bảo vệ môi trường và các nghị định hướng dẫn.
Báo cáo ĐTM lần này khẳng định quy mô, công suất, diện tích dự án không thay đổi so với hồ sơ đã được phê duyệt trước đó. Tuy nhiên, việc lập lại không đơn thuần là “làm lại hồ sơ”, mà là đánh giá lại toàn bộ bối cảnh pháp lý, môi trường và tiêu chuẩn áp dụng, trong điều kiện hệ thống luật môi trường đã có nhiều thay đổi giai đoạn 2020–2025.

Dự án có sử dụng đất rừng

Một trong những nội dung quan trọng trong Báo cáo đánh giá tác động môi trường của Khu du lịch sinh thái Việt Resort là việc dự án có sử dụng đất rừng. Đây chính là yếu tố khiến dự án bắt buộc phải lập lại ĐTM và chịu sự giám sát chặt chẽ hơn so với nhiều dự án du lịch khác trên đảo Phú Quốc.
Theo hồ sơ pháp lý kèm theo ĐTM, khu đất thực hiện dự án nằm tại khu phố Rạch Vẹm, đặc khu Phú Quốc, trong đó một phần diện tích liên quan đến đất lâm nghiệp, thuộc khu vực đã được kiểm kê hiện trạng rừng và đất rừng tại khoảnh 2, tiểu khu 57, vùng đệm Vườn quốc gia Phú Quốc. Đây là khu vực có vai trò quan trọng trong việc bảo vệ hệ sinh thái, đa dạng sinh học và cân bằng môi trường tự nhiên phía Bắc đảo.
Liên quan đến nghĩa vụ môi trường, chủ đầu tư đã thực hiện phương án trồng rừng thay thế khi chuyển mục đích sử dụng đất rừng và được UBND tỉnh Kiên Giang (nay là tỉnh An Giang) phê duyệt tại Quyết định số 1000/QĐ-UBND ngày 24/4/2018. Đây là điều kiện bắt buộc để dự án được tiếp tục các bước pháp lý tiếp theo.
Ngoài ra, chủ đầu tư cũng đã hoàn tất việc nộp tiền trồng rừng thay thế vào Quỹ Bảo vệ và Phát triển rừng theo thông báo của cơ quan chuyên môn, thể hiện trách nhiệm tài chính đối với phần diện tích rừng bị chuyển đổi mục đích sử dụng.

Nhận diện rõ tác động môi trường trong giai đoạn thi công

Báo cáo ĐTM dành dung lượng lớn để phân tích các tác động môi trường phát sinh trong giai đoạn san lấp và xây dựng, vốn được xem là giai đoạn nhạy cảm nhất.
Các nguồn tác động chính gồm:
- Bụi và khí thải từ hoạt động đào đắp, san nền và máy móc thi công;
- Nước thải sinh hoạt từ công nhân;
- Nước mưa chảy tràn cuốn theo bùn đất;
- Chất thải rắn sinh hoạt, sinh khối phát quang và chất thải nguy hại.
ĐTM đánh giá, các tác động này mang tính cục bộ, có thời hạn, tập trung trong phạm vi công trường và có thể kiểm soát thông qua các biện pháp kỹ thuật như che chắn, tưới nước giảm bụi, thu gom – xử lý chất thải theo quy trình.

Giai đoạn vận hành: giao thông và nước thải là hai áp lực chính

Khi dự án đi vào hoạt động, nguồn gây tác động lớn nhất được xác định là phương tiện giao thông ra vào khu du lịch và lượng nước thải sinh hoạt phát sinh từ du khách, nhân viên.
Đáng chú ý, kết quả tính toán cho thấy trong kịch bản vận hành tối đa, nồng độ NO₂ từ giao thông có thể vượt quy chuẩn, nhưng chỉ xảy ra trong điều kiện giả định 100% công suất hoạt động cùng lúc. Báo cáo lập luận rằng trên thực tế, lưu lượng xe sẽ phân bổ theo thời gian, trong khi không gian dự án rộng, có nhiều cây xanh và mặt nước, giúp giảm đáng kể mức độ ảnh hưởng đến môi trường xung quanh.

Hệ thống xử lý môi trường được đầu tư bài bản

Một trong những nội dung trọng tâm của ĐTM là hệ thống thu gom và xử lý nước thải tập trung công suất 500m³/ngày đêm, bảo đảm nước thải sau xử lý đạt quy chuẩn trước khi xả ra môi trường. Ngoài ra, dự án bố trí khu vực lưu chứa chất thải rắn, chất thải nguy hại riêng biệt và tổ chức chương trình quan trắc, giám sát môi trường định kỳ trong suốt quá trình vận hành.
ĐTM cũng nêu rõ trách nhiệm của chủ đầu tư trong việc duy trì, vận hành đúng công suất các công trình bảo vệ môi trường, coi đây là điều kiện bắt buộc để dự án được phép hoạt động ổn định, lâu dài.

Phù hợp quy hoạch, nhưng “cửa ải” môi trường là then chốt

Về mặt định hướng phát triển, dự án được đánh giá phù hợp với quy hoạch chung Phú Quốc đến năm 2040, Quy hoạch tỉnh và các chiến lược quốc gia về bảo vệ môi trường, đa dạng sinh học. Tuy nhiên, trong bối cảnh Phú Quốc đang chịu áp lực lớn từ phát triển du lịch, ĐTM không còn là thủ tục hình thức, mà là “cửa ải” pháp lý quyết định dự án có được triển khai hay không.
Việc Việt Resort lập lại ĐTM cho thấy, để quay trở lại đường đua, các dự án du lịch tại Phú Quốc buộc phải soát lại từ gốc, tuân thủ chặt chẽ khung pháp lý mới, đặc biệt với những dự án có liên quan đến đất rừng và tài nguyên thiên nhiên.
Đăng Thy

Bình luận

Bài viết tương tự:

Thông tin mới nhất về cầu vượt biển 18km dài nhất Việt Nam

Thông tin mới nhất về cầu vượt biển 18km dài nhất Việt Nam

11:16 24/12/2025

Dự án đầu tư xây dựng công trình đường giao thông ra đảo Hòn Khoai được thiết kế theo tiêu chuẩn cầu vượt biển, dài gần 18km với 4 làn xe và tốc độ 80km/h. Khi hoàn thành, cây cầu này sẽ vượt qua cầu Tân Vũ - Lạch Huyện (Hải Phòng, dài 5,44km, thông xe năm 2017) để trở thành cầu vượt biển dài nhất Việt Nam và xếp thứ ba Đông Nam Á.

Đang chi trả tiền bồi thường cho người dân Tây Ninh tại dự án khu đô thị hơn 97ha

Đang chi trả tiền bồi thường cho người dân Tây Ninh tại dự án khu đô thị hơn 97ha

09:55 24/12/2025

Khu đô thị thị trấn Cần Giuộc - phía Bắc tại xã Cần Giuộc, tỉnh Tây Ninh có quy mô hơn 97ha, tác động đến khoảng 700 hộ dân và 2 tổ chức, với tổng kinh phí bồi thường, hỗ trợ và tái định cư hơn 3.581 tỷ đồng. Đến nay, hơn 200 hộ dân, tương ứng khoảng 26ha, đã đồng ý nhận bồi thường, hỗ trợ với tổng số tiền khoảng 800 tỷ đồng.

Lộ diện doanh nghiệp rót hơn 185 triệu USD làm khu công nghiệp gần 500 ha tại Phú Thọ

Lộ diện doanh nghiệp rót hơn 185 triệu USD làm khu công nghiệp gần 500 ha tại Phú Thọ

09:14 24/12/2025

UBND tỉnh Phú Thọ vừa chính thức trao quyết định chấp thuận chủ trương đầu tư và giấy chứng nhận đăng ký đầu tư dự án Khu công nghiệp Đoan Hùng cho Tập đoàn Amata - “ông lớn” bất động sản công nghiệp đến từ Thái Lan, với tổng vốn đầu tư hơn 185 triệu USD, quy mô gần 500 ha, định hướng thu hút các ngành công nghệ cao và thân thiện với môi trường.

Diễn biến mới nhất khu đô thị gần 1.000ha giáp ranh TP.HCM, cách trung tâm 40km

Diễn biến mới nhất khu đô thị gần 1.000ha giáp ranh TP.HCM, cách trung tâm 40km

18:03 23/12/2025

Sau khi được Thủ tướng Chính phủ chấp thuận chủ trương đầu tư, Khu đô thị mới Tân Mỹ đang tiếp tục hoàn thiện các thủ tục pháp lý quan trọng, trong đó có Báo cáo đánh giá tác động môi trường (ĐTM). Hồ sơ ĐTM cho thấy đây là một trong những dự án đô thị có quy mô lớn nhất khu vực cửa ngõ Tây Bắc TP.HCM, với diện tích gần 1.000ha, cấu trúc không gian được tổ chức thành nhiều phân khu chức năng rõ ràng.

Tỷ trọng tiền sử dụng đất giảm hơn 10%, Hải Phòng tái cấu trúc nguồn thu ngân sách

Tỷ trọng tiền sử dụng đất giảm hơn 10%, Hải Phòng tái cấu trúc nguồn thu ngân sách

18:00 23/12/2025

Hải Phòng đang phát đi tín hiệu rõ ràng về một bước chuyển quan trọng trong cấu trúc tài chính công, khi từng bước giảm tỷ trọng tiền sử dụng đất trong thu ngân sách nội địa, đồng thời gia tăng vai trò của các nguồn thu ổn định hơn từ khu vực doanh nghiệp, đặc biệt là khối FDI và doanh nghiệp ngoài quốc doanh.

TIN XEM NHIỀU:

TIN MỚI:

DƯ LUẬN QUAN TÂM:

Quân khu 7 Online

Theo dõi chúng tôi tại:

Cơ quan chủ quản: Bộ Tư lệnh Quân khu 7

Giấy phép số 486/GP-BTTTT ngày 28/07/2021

© Báo Quân khu 7 điện tử giữ bản quyền nội dung trên website này.

Tòa soạn: 17/12 Hồ Văn Huê, phường Đức Nhuận, TP. Hồ Chí Minh

Tổng Biên tập: Đại tá Nguyễn Văn Bắc

Phó Tổng Biên tập: Thượng tá Lại Thế Hiền

Email: bao@qk7.vn | info@baoquankhu7.vn | 1